启东市龙盛石化设备制造有公司
地址:启东市汇龙工业园区杨沙路18
邮编:226200
邮箱:qdsls@www.qdsls.cn
13951335027@139.com
电话:0513-83353586 13951335068
传真:0513-83350849
网址:www.www.qdsls.cn

![]()

| ◎产品简介 |
LSG系列罐用喷射式混合器适用范围广阔,作为一个依据,可以说,只要用离心泵可以传送翻转液体,就可以用这种混合器。主要用于容器、贮存罐和中和池,如油品调合,酸碱中和反应等工艺,实为理想的混合设备。 |
![]() |
| ◎型号标准 |
![]() |
| ◎产品规格 |
| 螺纹连接的罐用喷射式混合器 |
![]() |
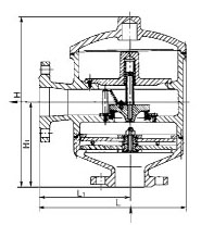
| 法兰连接的罐用喷射式混合器 |
![]() |
| 注:1、无特殊要求,法兰标准为HG20593-97 PN1.0; 2、表中斜线下方尺寸为不锈钢或塑料混合器,上方为碳钢混合器。 |
| ◎产品选型 |
| LSG系列罐用喷射式混合器型号和尺寸号的安排十分巧妙,对于一般的工艺要求来说,总能找到理想的混合器,根据下列功率曲线,您总能得到满意的答案。 示例:己知:罐直径:3600mm 罐高度:8m 翻转泵流量:10m3/h 入混合器压力:4kg/cm2 翻转次数:0.5h/次 求解:罐用喷射式混合器的型号。 解:根据功率曲线图,罐用喷射式混合器型号应选:LSG-4 |
![]() |