启东市龙盛石化设备制造有限公司

联系我们

启东市龙盛石化设备制造有公司

地址:启东市汇龙工业园区杨沙路18

邮编:226200

邮箱:qdsls@www.qdsls.cn

   13951335027@139.com

电话:0513-83353586  13951335068

传真:0513-83350849

网址:www.www.qdsls.cn

静态混合器

您的当前位置:首 页>> 产品中心 >> 静态混合器

SN型分配器

  • 所属分类:静态混合器

  • 点击次数:0
  • 发布日期:2016-09-25
详细介绍
产品特性

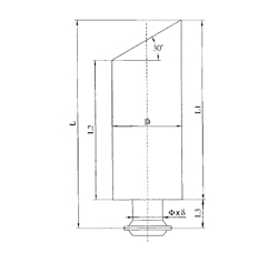
  流体在输送过程中,往往由于各股流体输送压力不平衡而影响混合比,为更好地配合用户使用好静态混合器,本公司最新研制开发出S N型分配器,具有喷射升压泵的性能,在保证次流流量的条件下,使物料的出口压力达到所要求的压力。S N型分配器由喷嘴、接受室、混合室、扩散室等组成。主流经过喷嘴,以其高速度在锥形入口处形成低压,从而使次流被抽吸进接受室,使其加速,在混合室内高度涡漩,以一定的速度从扩散室喷出,从而使流体顺利地输送至静态混合器中进行混合,以达到最佳的使用效果。

产品应用
  适用于二股或二股以上流体进料,当主流与次流压力不平衡时选用文氏管形分配器,当主流与次流压力平衡时选用一般形式分配器。
◎产品形式
◎产品选用
  SN型分配器是针对不同工艺条件运行,为更好地帮助用户设计、定型,敬请与本公司技术部联系。


上一篇:没有了
下一篇:SV型静态混合器